Il cuore del progetto Generavivo Bergamo
Generavivo Bergamo, situato in via Guerrazzi, è un progetto abitativo innovativo che si distingue per la sua comunità dinamica.
Con 5,491.10 metri quadrati suddivisi in quattro palazzine, offre una combinazione unica di proprietà e locazioni, permettendo a diverse famiglie di trovare il loro spazio ideale.
Il progetto
La forza della comunità
Nel 2023, 43 nuclei familiari, per un totale di 75 persone, hanno scelto Generavivo per il suo ambiente inclusivo e collaborativo. Questo progetto promuove legami comunitari forti, permettendo alle famiglie di crescere insieme in un contesto che valorizza la partecipazione attiva.
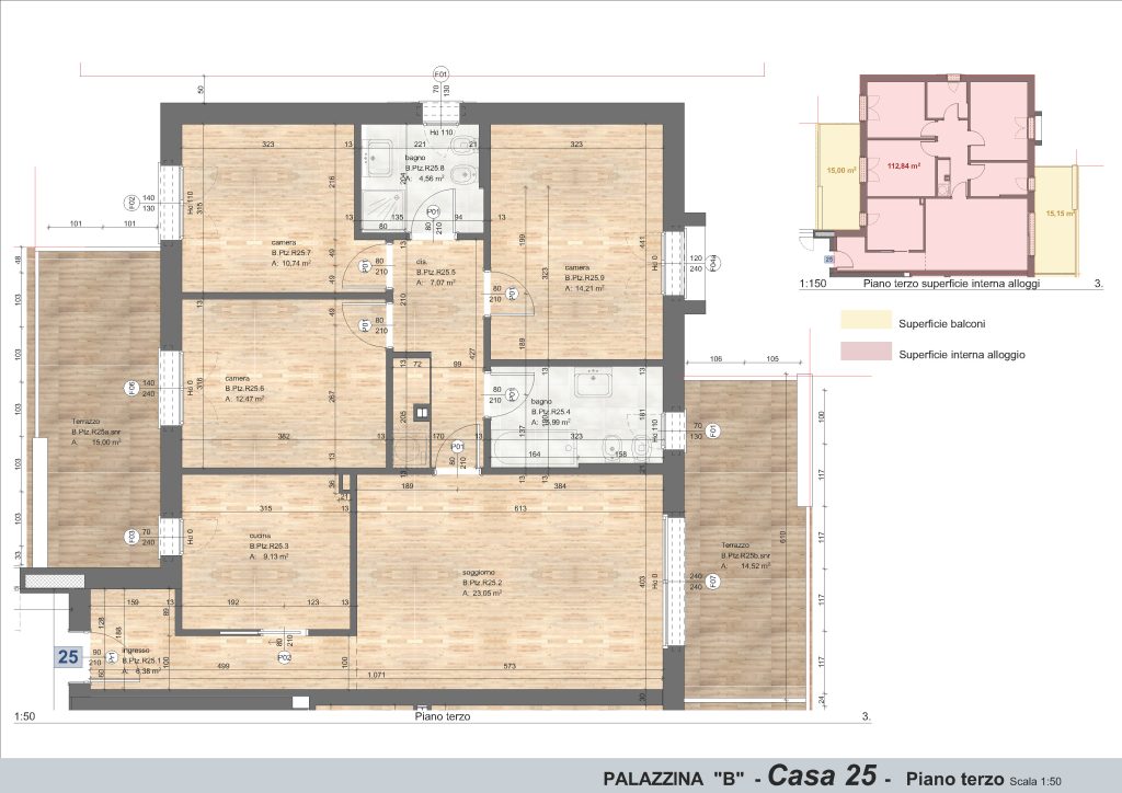
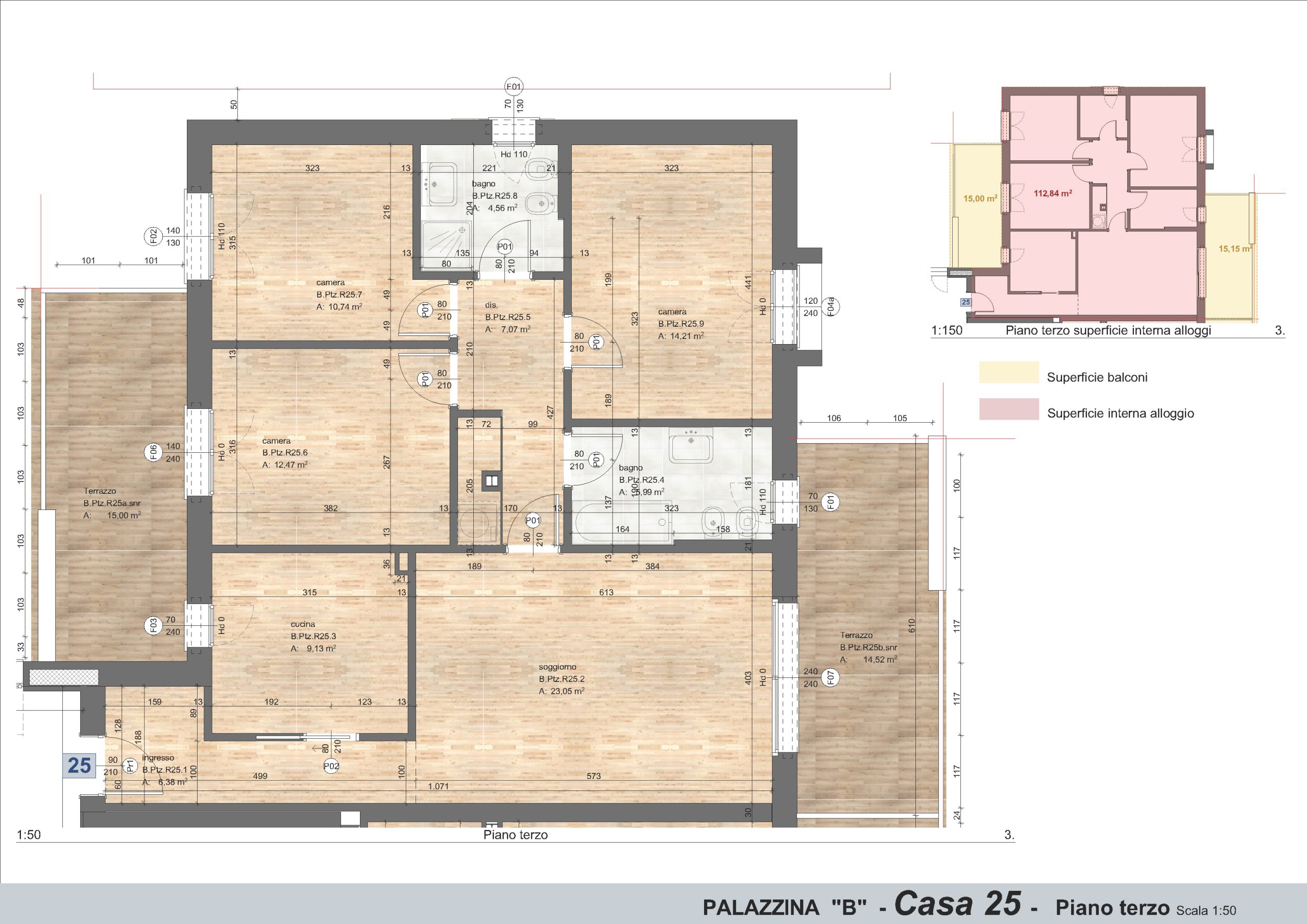
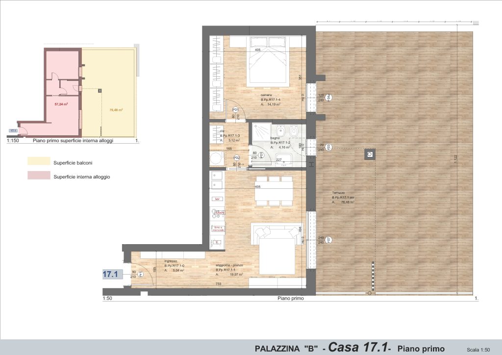
Tipologie Abitative
Spazi Comuni per Connettere
Gli spazi comuni di Generavivo sono pensati per favorire l’interazione e la socializzazione. Con 690 metri quadrati di aree interne condivise e 4,700 metri quadrati di verde e corti, i residenti godono di ambienti ideali per attività comunitarie e momenti di relax.
Cucina Comune
Area conviviale zona living
Lavanderia/ stireria/atelier
Spazio bambini
Area fitness
Ambulatorio medico-infermieristico
Spazio studio-lavoro con box call
Stanza dello spirito
Deposito per gruppi
di acquisto solidale
Attrezzeria /ciclofficina
Contesto
Generavivo Bergamo si trova all'interno del Villaggio degli Sposi, quartiere della città immerso nel verde e ricco di servizi.
Nelle Vicinanze
Asili e Scuole
Centro sportivo
Ufficio postale
Ospedale Papa Giovanni XXIII
Piste ciclabili
Centro anziani e centro socio-culturale
Centro parrocchiale
Centro commerciale
Autobus e stazione ferroviaria
I promotori dell'iniziativa Generavivo Bergamo.
Soggetto attuatore dell’iniziativa che aggrega gli abitanti
Cooperativa sociale che si prende cura delle fragilità
Impresa di sviluppo e valorizzazione sociale e immobiliare
Le persone
Tra i protagonisti
Sono un gruppo eterogeneo di soggetti che uniscono competenze diverse. Tra questi vi sono aziende del settore edile, enti del terzo settore e realtà che operano nel campo della sostenibilità e dell’abitare collaborativo
Rebecca Pernechele
Futuro abitante e membro CdA Abitare Condividere Soc. Coop. Edilizia
Gilberto Benedetti
Direzione sviluppo e innovazione sociale È.one abitarègenerativo S.r.l.
Vanni Cassis
Futuro abitante e membro CdA Abitare Condividere Soc. Coop. Edilizia
Sara Caccia
Presidente Namasté Soc. Coop. Sociale e membro CdA Abitare Condividere Soc. Coop. Edilizia
Luigi Cassetti
Membro CdA Abitare Condividere Soc. Coop. Edilizia
Alice Salvi
Vicepresidente Namasté Soc. Coop. Sociale
Donatella Wallnöfer
Architetto
Ugo Mastroianni
SVS S.r.l.
Claudio Ubiali
consulente legale in ambito notarile
Alessandro Gambaretti
Planeo S.r.l.
Tecnologia costruttiva
Generavivo offre spazi abitativi sostenibili ed energicamente efficienti.
Materiali Ecologici
Legno certificato SALE (Sistema Affidabilità Legno Edilizia) e PEFC (Chain of Custody), proveniente da foreste gestite in modo sostenibile. Le lastre di rivestimento delle pareti e delle contropareti interne sono realizzate in gesso, un materiale naturale noto per le sue proprietà igroscopiche, e contribuiscono a migliorare il comfort abitativo e a ridurre l’umidità all’interno degli ambienti.
Isolante
Per garantire un’elevata efficienza termo-acustica viene impiegato un isolante prodotto entro un raggio di 20 km dal sito, riducendo così l’impatto derivante dai trasporti.
Criteri Ambientali Minimi
Tutti i prodotti utilizzati rispettano i CAM garantendo un’attenzione costante alla sostenibilità ambientale. Il calcestruzzo impiegato è prodotto localmente, nella provincia di Bergamo. Le impermeabilizzazioni sono certificate secondo lo standard ISO 9001:2015, mentre le opere sono soggette a certificazione e verifica da parte di Bureau Veritas, garantendo standard elevati di qualità e sicurezza.